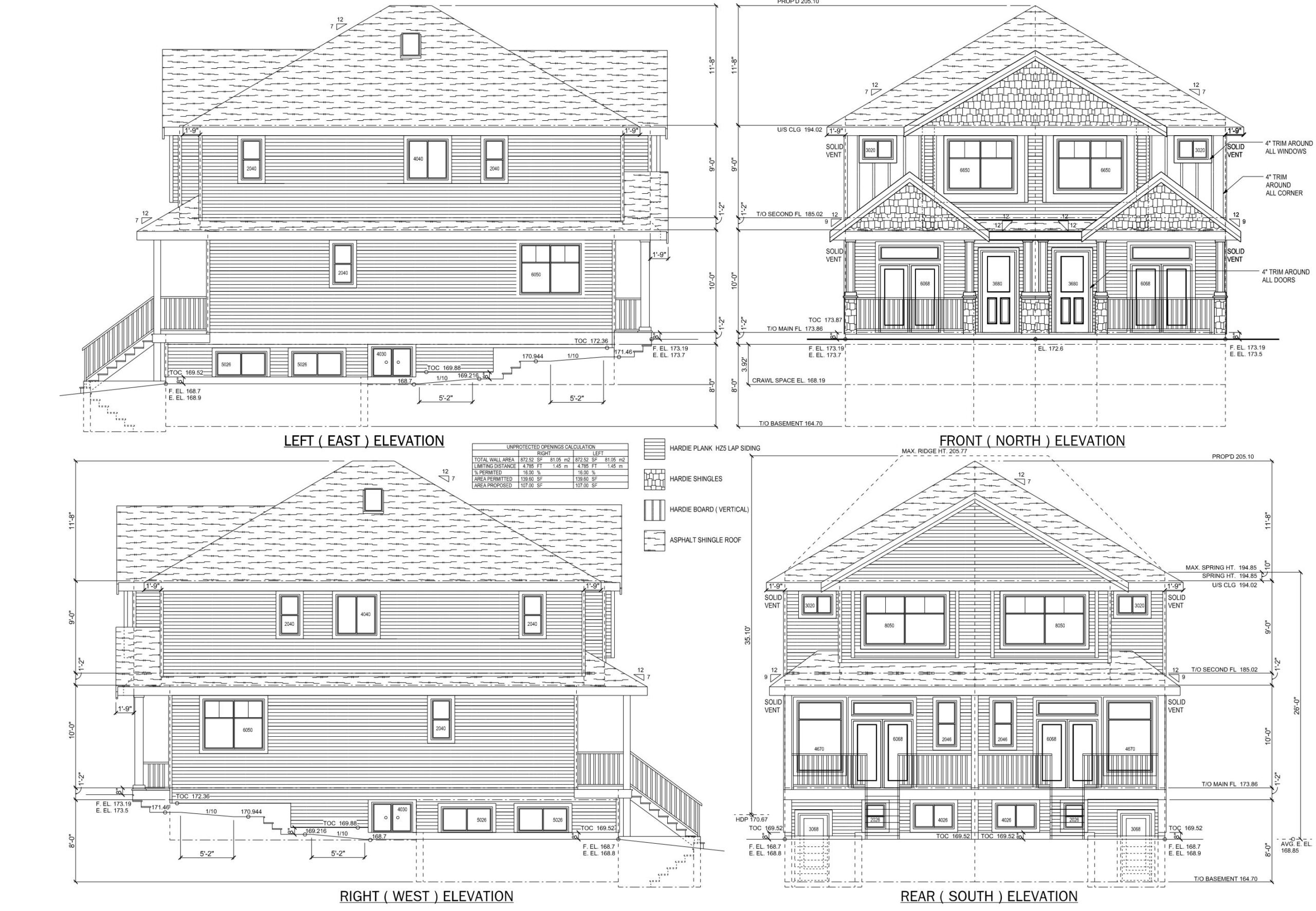
Title: Renfrew Village Duplex
Location: Nanaimo Street & E 8th Avenue
Size: +4,000 sqft
Description: Side-by-side duplex units with 3 levels of living space. Each unit comes with 4 bedrooms, 4.5 bathrooms with a legal basement suite.
Completion: 2023